MATOURY (97351)
LOCATION // LOCAL COMMERCIAL
Local commercial //
7 900 € (+0 € de charges)
Créez une alerte email
et recevez les biens correspondants à votre recherche en temps réel !
Le descriptif de l'annonce
Réf: 86823424


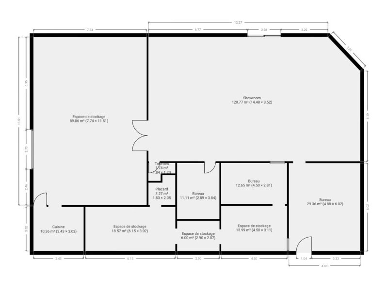
Réservez votre visite grâce au lien suivant : https://www.plato.immo/c/QYK2 MATOURY, Découvrez ce superbe local commercial de 400 m², idéalement situé dans le secteur de Collery, à proximité du Carrefour Matoury et du Family Plaza. Ce local commercial dispose d’un showroom avec une belle hauteur sous plafond, ainsi que de 3 bureaux allant de 11 à 29 m². Vous bénéficierez également de 3 espaces de stockage situés à l’arrière des bureaux, ainsi que d’un espace dépôt avec une zone de stockage supplémentaire à l’étage de 119 m². Un espace cuisine est également prévu, idéal pour aménager un espace de détente. À l’extérieur, vous pourrez profiter de places de stationnement entièrement réservées au local. À découvrir sans tarder. Conditions locatives : Loyer mensuel HC: 7500 € Charges : 400 € Dépôt de garantie : 15 000 € Honoraires d'agence à la charge du locataire : 4 500 € Les informations sur les risques auxquels ce bien est exposé sont disponibles sur le site Géorisques : georisques.gouv.fr Non soumis au DPE Non soumis au DPE
Les détails du bien


Code postal
97351
Les Diagnostics de performance énergétique (DPE)


DPE
GES
Cette annonce immobilière vous est presentée par
MILTON IMMOBILIER
87 Lotissement BENEY
97300 CAYENNE
Vous souhaitez être contacté par un de nos collaborateurs à propos de ce bien.
nom *
prénom
e-mail
téléphone *
message
* (champ obligatoire)
Espace PRO adhérent FNAIM











En construction
Rejoignez-nous sur les Réseaux sociaux !
Restez informés, décrouvrez en direct nos dernières actualités sur Facebook, Twitter et YouTube !
PROFESSIONNELS DE L'IMMOBILIER, REJOIGNEZ

La FNAIM première force politique de l'immobilier en France

FNAIM ANTILLES GUYANE © 2016 | Tous droits réservés

Les sites de la fédération :
FNAIM ANTILLES GUYANE