KOUROU (97310)
LOCATION // LOCAL INDUSTRIEL
Local industriel // 735 m²
6 900 € (+0 € de charges)
Créez une alerte email
et recevez les biens correspondants à votre recherche en temps réel !
Le descriptif de l'annonce
Réf: 85416557


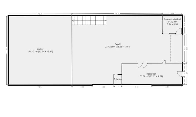
Réservez votre visite grâce au lien suivant : https://www.plato.immo/c/9FG8 KOUROU, Découvrez cet entrepôt spacieux de 735 m² réparti sur deux niveaux, idéalement situé à Kourou, à proximité du lac du Bois Chaudat. Au rez-de-chaussée, profitez d’un accès pratique grâce à un grand rideau métallique, d’un espace d’accueil, d’une zone de stockage à l’arrière, d’un dépôt principal, d’un bureau individuel et d’un WC indépendant. À l’étage, un vaste espace ouvert vous attend, complété par un bureau individuel, une cafétéria et une salle d’eau, parfait pour répondre à vos besoins professionnels. Idéal pour entrepôt, activité artisanale ou autre projet professionnel nécessitant de grands volumes. Disponible immédiatement, cet entrepôt offre un emplacement stratégique et des aménagements fonctionnels pour accompagner le développement de votre activité. Disponible de suite. Loyer mensuel: 6 900€ Dépôt de garantie : 6 900€ Honoraires d'agence à la charge du locataire : 12 420€ Activité non autorisée : type garage. Taxe foncière à la charge du locataire. Non soumis au DPE
Les détails du bien


Superficie (m²)
735
Code postal
97310
Les Diagnostics de performance énergétique (DPE)


DPE
GES
Cette annonce immobilière vous est presentée par
MILTON IMMOBILIER
87 Lotissement BENEY
97300 CAYENNE
Vous souhaitez être contacté par un de nos collaborateurs à propos de ce bien.
nom *
prénom
e-mail
téléphone *
message
* (champ obligatoire)
Espace PRO adhérent FNAIM











En construction
Rejoignez-nous sur les Réseaux sociaux !
Restez informés, décrouvrez en direct nos dernières actualités sur Facebook, Twitter et YouTube !
PROFESSIONNELS DE L'IMMOBILIER, REJOIGNEZ

La FNAIM première force politique de l'immobilier en France

FNAIM ANTILLES GUYANE © 2016 | Tous droits réservés

Les sites de la fédération :
FNAIM ANTILLES GUYANE