REMIRE MONTJOLY (97354)
VENTE // APPARTEMENT
Appartement 1 pièce // 21 m²
95 686 €
Créez une alerte email
et recevez les biens correspondants à votre recherche en temps réel !
Le descriptif de l'annonce
Réf: 86922899


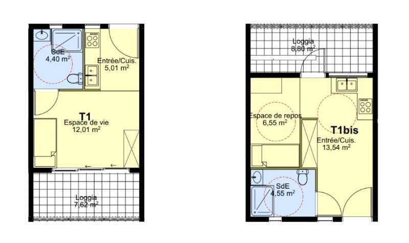
Réservez votre rendez-vous grâce au lien suivant : https://plato.immo/c/9904 À Rémire-Montjoly, dans le secteur prisé d’Attila Cabassou, découvrez la résidence ITHACA et ce studio neuf de 21 m², idéal pour investir sereinement. À proximité immédiate de la pharmacie, à seulement 15 minutes de l’Hyper U et du lycée Léon Gontran Damas, vous bénéficiez d’un emplacement stratégique. Cette résidence sera également située en face d’un futur groupe scolaire comprenant un collège et un lycée, un véritable atout pour la valorisation du secteur et la demande locative à venir. Ce T1 bien agencé propose une cuisine ouverte de 5 m² donnant sur un espace de vie lumineux de 12 m², ainsi qu’une salle d’eau fonctionnelle. Une loggia vient prolonger l’ensemble pour profiter d’un espace extérieur agréable. Parfait pour un premier investissement locatif, ce bien allie confort moderne, emplacement recherché et fort potentiel. Livraison prévue au 4e trimestre 2028. Répartition du programme : - 2 locaux commerciaux - 10 appartements T1 - 2 appartements T1 Bis - 13 appartements T2 - 10 appartements T3 - 3 appartements T4 À saisir rapidement ! ELIGIBLE À LA DÉFISCALISATION...
Les détails du bien


Superficie (m²)
21
Code postal
97354
Nombre de pièces
1
Les Diagnostics de performance énergétique (DPE)


DPE
GES
Cette annonce immobilière vous est presentée par
MILTON IMMOBILIER
87 Lotissement BENEY
97300 CAYENNE
Vous souhaitez être contacté par un de nos collaborateurs à propos de ce bien.
nom *
prénom
e-mail
téléphone *
message
* (champ obligatoire)
Si ce bien ne correspond pas à vos attentes, voici nos biens similaires
Espace PRO adhérent FNAIM











En construction
Rejoignez-nous sur les Réseaux sociaux !
Restez informés, décrouvrez en direct nos dernières actualités sur Facebook, Twitter et YouTube !
PROFESSIONNELS DE L'IMMOBILIER, REJOIGNEZ

La FNAIM première force politique de l'immobilier en France

FNAIM ANTILLES GUYANE © 2016 | Tous droits réservés

Les sites de la fédération :
FNAIM ANTILLES GUYANE